އެޗްޑީސީ އިން ބުނީ މި ބަދަލު ގެނައީ، ޓްރެފިކް ބާރު ބޮޑުވުން ކުޑަ ކުރުމާއި ސްކޫލް ކުދިންގެ ރައްކާތެރި ކަމަށެވެ.

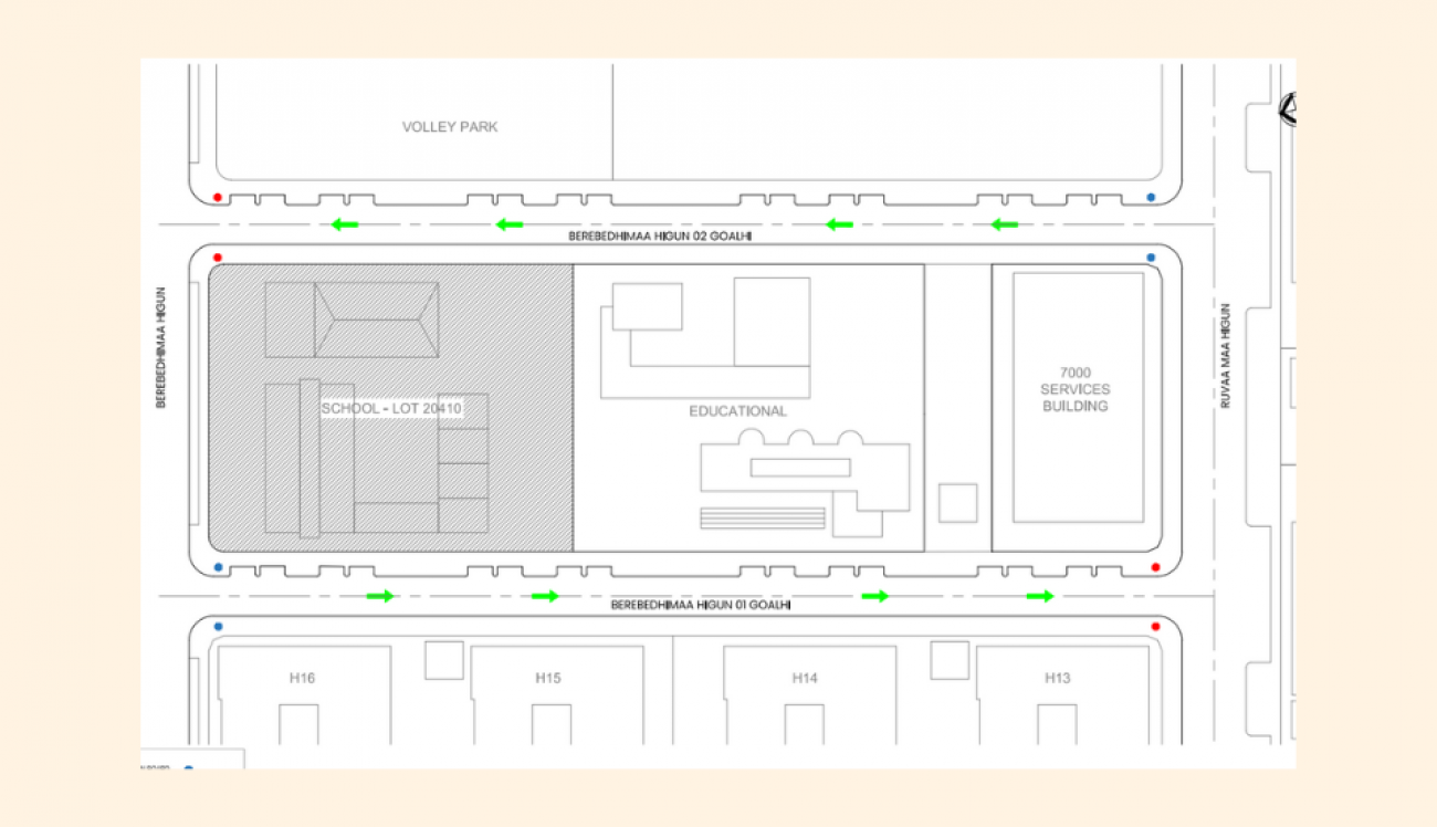
ހުޅުމާލޭ ދެވަނަ ފިޔަވަހީގައި އިމާރާތްކޮށްފައިވާ ޝަހީދު އަލީ ސްކޫލް ވަށައިގެން އޮންނަ (ބެރެބެދިމާ ހިނގުން ގޯޅި 1 އަދި 2) އެއްކޮޅަށް ދުއްވޭ މަގަކަށް ބަދަލުކޮށްފި އެވެ.
އެޗްޑީސީ އިން ބުނީ މި ބަދަލު ގެނައީ، ޝަހީދު އަލީ ސްކޫލުގެ މަސައްކަތް ނިމި، ދިރާސީ އާ އަހަރާ ދިމާކޮށް ސްކޫލް ހުޅުވުމުގެ ކުރިން، އެ ސްކޫލަށް ދެވޭގޮތަށް އޮންނަ ދެ ގޯޅި (ބެރެބެދިމާ ހިނގުން ގޯޅި 1 އަދި 2) ގެ ޓްރެފިކް ބާރުބޮޑުވުން ހައްލުކުރުމަށާއި، އެ ސަރަހައްދަކީ ސްކޫލު ކުދިން ހިނގާބިނގާވެ އުޅުމަށް ރައްކާތެރި ސަރަހައްދަކަށް ހެދުމަށްޓަކައެވެ.
މި ކޯޕަރޭޝަނުން އަބަދުވެސް މަސައްކަތް ކުރަނީ ހުޅުމާލެ ރައްޔިތުންގެ ދިރިއުޅުމުގެ ފެންވަރު ރަނގަޅުކޮށް، ލުއިފަސޭހަ ގޮތްތައް މަގުފަހިކޮށްދިނުމަށެވެ.